Find a Home
13787 Broadview East Rd, Unit 4 Unit 4Broadview, MT 59015
Due to the health concerns created by Coronavirus we are offering personal 1-1 online video walkthough tours where possible.




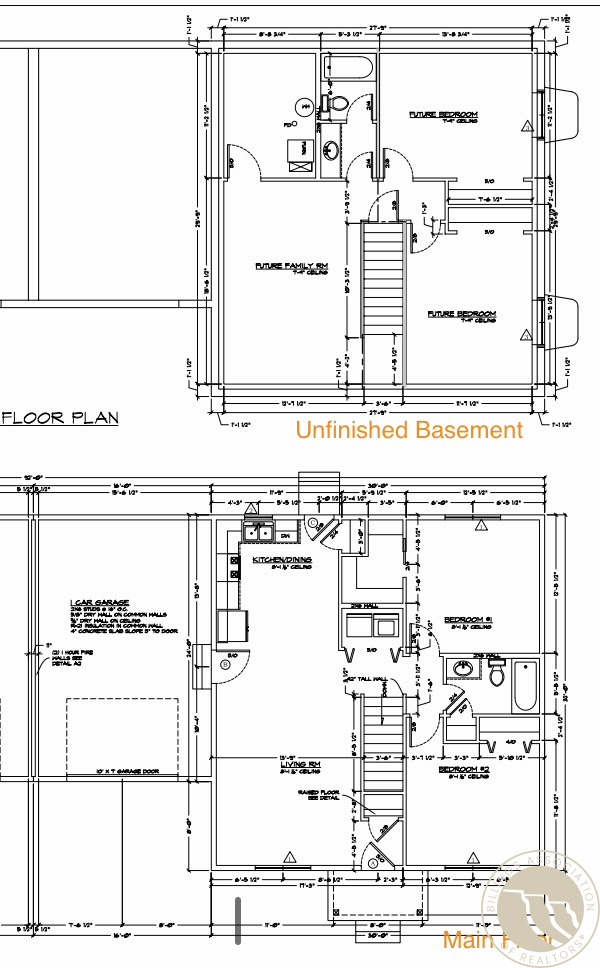
PROPOSED CONSTRUCTION - Photos of a similar home. Enjoy comfortable living in this well-designed 4-bedroom, 2-bath townhouse offering 1,920 sq ft of space. The main level features an open layout with a bright living area and a functional kitchen complete with range, refrigerator, dishwasher, and microwave. Gas forced-air heating and central air provide year-round comfort. The full unfinished basement provides ample storage and the opportunity to expand your living space to fit your needs, with potential for an additional bathroom and 3rd and 4th bedrooms. The single-car attached garage provides a great space for storage or vehicles, and with no HOA fees, you’ll enjoy added flexibility and affordability.
| 5 days ago | Listing first seen on site | |
| 5 days ago | Listing updated with changes from the MLS® |
All rights reserved. Information deemed reliable, but not verified or guaranteed. Users are responsible for checking the accuracy, completeness, currency, and status of all information.
Copyright © Billings Association of REALTORS® Incorporated and Billings Multiple Listing Service Incorporated.